Logo
  • О компании
  • Проекты
  • Инвесторам
  • Контакты
+7 966 240-94-10
  • Главная
  • Каталог
  • Дом Франт 120м2
Дом «Гранат» 120 м²
Минимализм и эстетика в одном коттедже
1-этажный дом 120м2 
Характеристики
Площадь, м² —  120 кв.м.
Этажей —  1
Количество комнат —  3
Площадь кухни, м² —  14,72
Количество санузлов —  2
Срок строительства, мес. —  5-8 мес.
Гарантия — 7 лет.
Фасады
Планировки
Описание
Оплата

Классический 1-этажный дом «Гранат» 120 кв.м - идеальный вариант для жизни за городом небольшой семьи. Классический дизайн фасада гармонично сочетается с внутренним убранством. Функциональное разделение комнат наилучшим образом делает пространство дома удобным, в таком доме будет комфортно всей семье - от мала до велика. 
Принимаем в оплату вторичное жилье. Также поможем с оформлением льготной ипотеки.

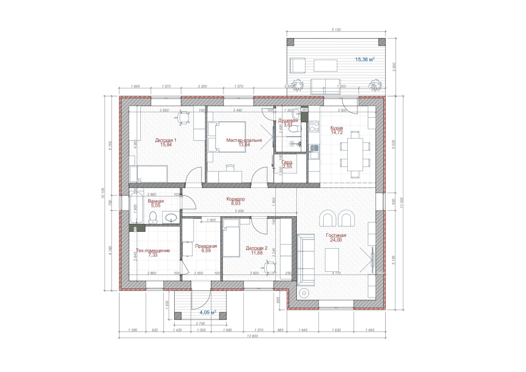
  • Кухня 14,72 
  • Гостиная 24,0 
  • Мастер-спальня 19,8 
  • Детская 1 15,84 
  • Детская 2 11,68 
  • Ванная комната 5,05 
  • Котельная 7,33 
  • Терраса 1 15,36 
  • Терраса 2 4,05

В стоимость входит: дом, разводка всех коммуникаций (газ, электричество, вода, канализация), чистовая отделка (акция), гарантия 7 лет, документация.

Принимаем в оплату вторичное жилье. Также поможем с оформлением льготной ипотеки.

СНАЧАЛА ДОМ, А ДЕНЬГИ - ПОТОМ!

Чтобы забронировать дом, достаточно внести задаток в размере 3 %.
Оставшаяся сумма вносится после окончания строительства дома.
Если Вы хотите рассчитаться деньгами от проданной квартиры, у Вас есть время для её продажи.

ТРЕЙД - ИН

Просто обменяйте Вашу квартиру на дом! Вы можете выбрать готовый дом и оплатить его стоимость полностью или частично квартирой, имеющейся у Вас в собственности.
Вы отправляете заявку на бесплатную оценку квартиры. Через 2-3 дня мы сделаем Вам предложение о выкупе квартиры.
Если Вы принимаете наше предложение, то выбрав дом, мы оформляем сделки купли-продажи.

ИПОТЕКА И МАТЕРИНСКИЙ КАПИТАЛ

При покупке дома Вы можете воспользоваться программами семейной и IT-ипотеки, а так же использовать материнский капитал. Услуга сопровождения сделки и получения ипотеки предоставляется бесплатно. Внесенный задаток будет входить в первоначальный взнос при получении ипотеки.
Вам может понравиться
Робби
1 этаж | 88,5м²
Люпин
1 этаж | 100м²
Монро
2 этажа | 120м²
Харт
2 этажа | 149м²
Амми
2 этажа | 173,6м²
Самшит
2 этажа | 194,4м²
+7 966 240-94-10
Режим работы:
Пн. – Пт.: с 9:00 до 18:00
E-mail: info@sekvoiya.ru
Республика Татарстан, г.Казань, Проспект Ямашева 45а, 10 этаж
Политика конфиденциальности
  • О компании
  • Инвесторам
  • Проекты
  • Контакты
Бесплатная консультация
Для бесплатной консультации оставьте своё имя и номер телефона.

Заказать звонок

Заполните поля ниже, мы позвоним вам и ответим на интересующие вопросы!
Спасибо!
Ваша заявка принята в обработку. 
В ближайшее время вышлем бонусные предложения