Logo
  • О компании
  • Проекты
  • Инвесторам
  • Контакты
+7 966 240-94-10
  • Главная
  • Каталог
  • Дом Мускари 220м2
Дом «Мускари» 220 м²
Моменты счастья в своем доме
2-этажный дом 220 кв.м
Характеристики
Площадь, м² —  220 кв.м.
Этажей —  2
Количество комнат —  4
Площадь кухни, м² —  40,87
Количество санузлов —  2
Срок строительства, мес. —  5-8 мес.
Гарантия — 7 лет.
Фасады
Планировки
Описание
Оплата

Надёжный и практичный дом с плоской кровлей. Уютный и футуристичный 2-этажный дом. Просторная площадь дома позволили разместить в нем все необходимые зоны. Наружная отделка дома из керамического кирпича с возможностью выбрать оттенок и композитных декоративных элементов. Местом притяжения для всей семьи будет большая кухня-гостиная, где вы сможете проводить уютные семейные посиделки и принимать гостей. А закрытая терраса станет излюбленным местом для всей семьи.

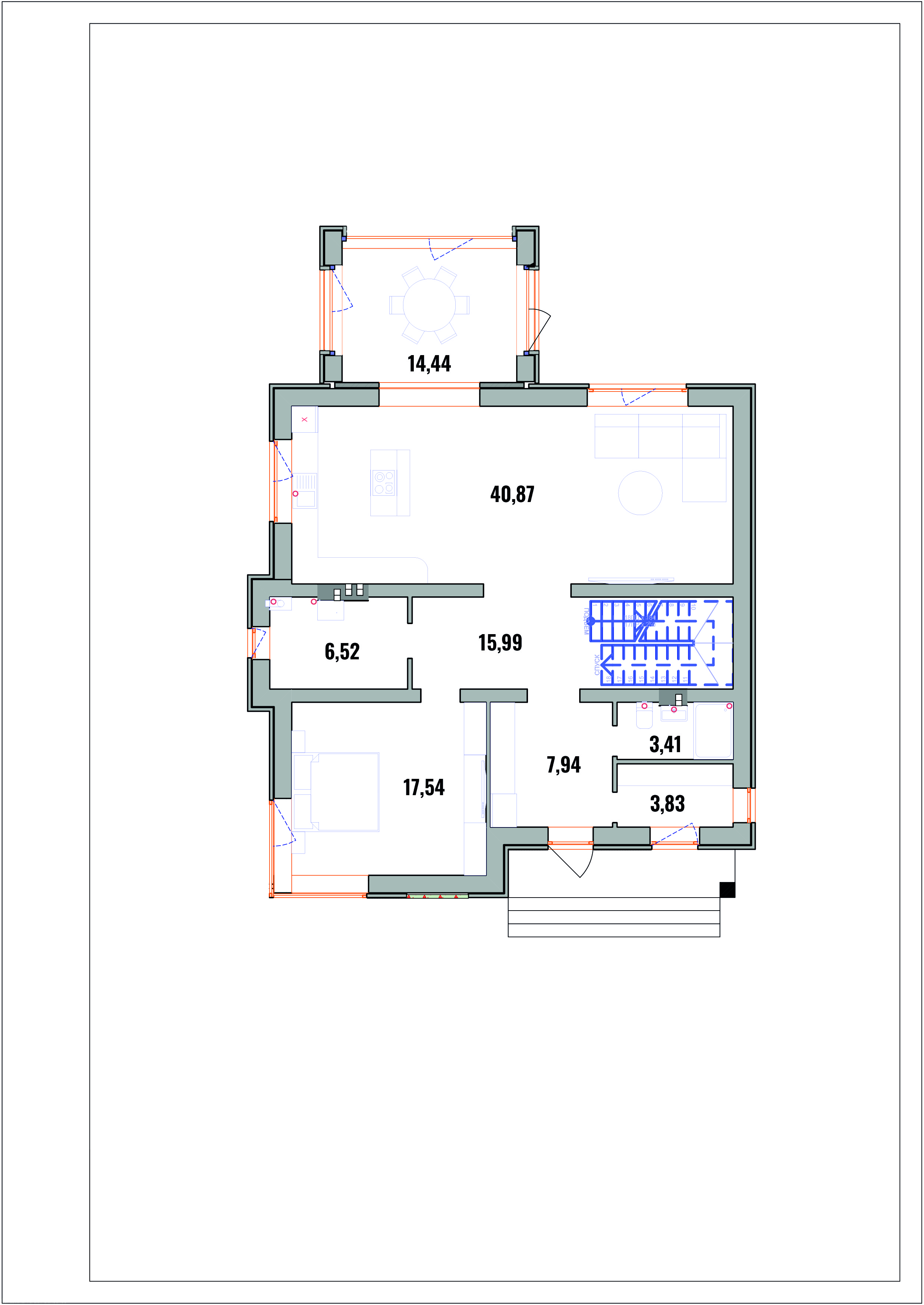
Общая площадь дома - 220 кв.м. На первом этаже просторная кухня-гостиная площадью 40,87 кв.м. с выходом на террасу, спальная комната 17,54 кв.м., гардеробная 3,83 кв.м., котельная-прачечная 6,52 квым, гостевой туалет 3,41 кв.м. На втором этаже мастер-спальня площадью 17,52 кв.м, со своей гардеробной 7,94 кв.м. и ванной комнатой 7,5 кв.м., две спальные комнаты по 16,99 кв.м., а также еще одна гардеробная площадью 6,08 кв.м. и большой санузел 6,52 кв.м.

В стоимость входит: дом, разводка всех коммуникаций (газ, электричество, вода, канализация), чистовая отделка (акция), гарантия 7 лет, документация. Также поможем с оформлением льготной ипотеки.

Принимаем в оплату вторичное жилье. Также поможем с оформлением льготной ипотеки.

СНАЧАЛА ДОМ, А ДЕНЬГИ - ПОТОМ!

Чтобы забронировать дом, достаточно внести задаток в размере 3 %.
Оставшаяся сумма вносится после окончания строительства дома.
Если Вы хотите рассчитаться деньгами от проданной квартиры, у Вас есть время для её продажи.

ТРЕЙД - ИН

Просто обменяйте Вашу квартиру на дом! Вы можете выбрать готовый дом и оплатить его стоимость полностью или частично квартирой, имеющейся у Вас в собственности.
Вы отправляете заявку на бесплатную оценку квартиры. Через 2-3 дня мы сделаем Вам предложение о выкупе квартиры.
Если Вы принимаете наше предложение, то выбрав дом, мы оформляем сделки купли-продажи.

ИПОТЕКА И МАТЕРИНСКИЙ КАПИТАЛ

При покупке дома Вы можете воспользоваться программами семейной и IT-ипотеки, а так же использовать материнский капитал. Услуга сопровождения сделки и получения ипотеки предоставляется бесплатно. Внесенный задаток будет входить в первоначальный взнос при получении ипотеки.
Вам может понравиться
Робби
1 этаж | 88,5м²
Люпин
1 этаж | 100м²
Монро
2 этажа | 120м²
Харт
2 этажа | 149м²
Амми
2 этажа | 173,6м²
Самшит
2 этажа | 194,4м²
+7 966 240-94-10
Режим работы:
Пн. – Пт.: с 9:00 до 18:00
E-mail: info@sekvoiya.ru
Республика Татарстан, г.Казань, Проспект Ямашева 45а, 10 этаж
Политика конфиденциальности
  • О компании
  • Инвесторам
  • Проекты
  • Контакты
Бесплатная консультация
Для бесплатной консультации оставьте своё имя и номер телефона.

Заказать звонок

Заполните поля ниже, мы позвоним вам и ответим на интересующие вопросы!
Спасибо!
Ваша заявка принята в обработку. 
В ближайшее время вышлем бонусные предложения